Contenu en pleine largeur
Jane Marie PétrierJane Marie Pétrier
Jane Marie Pétrier
Architecte DPLG
  • Accueil
  • Formation
  • Savoir-Faire
  • Développement Professionnel
  • Études & Projets
  • Contact
FacebookInstagramLinkedIn
  • Accueil
  • Formation
  • Savoir-Faire
  • Développement Professionnel
  • Études & Projets
  • Contact

Ilet du Phare

Vous êtes ici :
  1. Accueil
  2. Portfolio
  3. Ilet du Phare
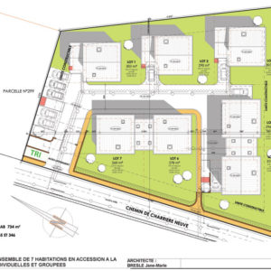
Ilet du Phare - Maison IndividuelleIlet du Phare - Maison IndividuelleIlet du Phare - Maison IndividuelleIlet du Phare - Maison Individuelle

Navigation de commentaire

Copyright © 2018 Jane-Marie Pétrier. Tous droits réservés. Politique de Confidentialité | Conception : CreaCom Design